RONALDSAY

House Style: 1½ Storey
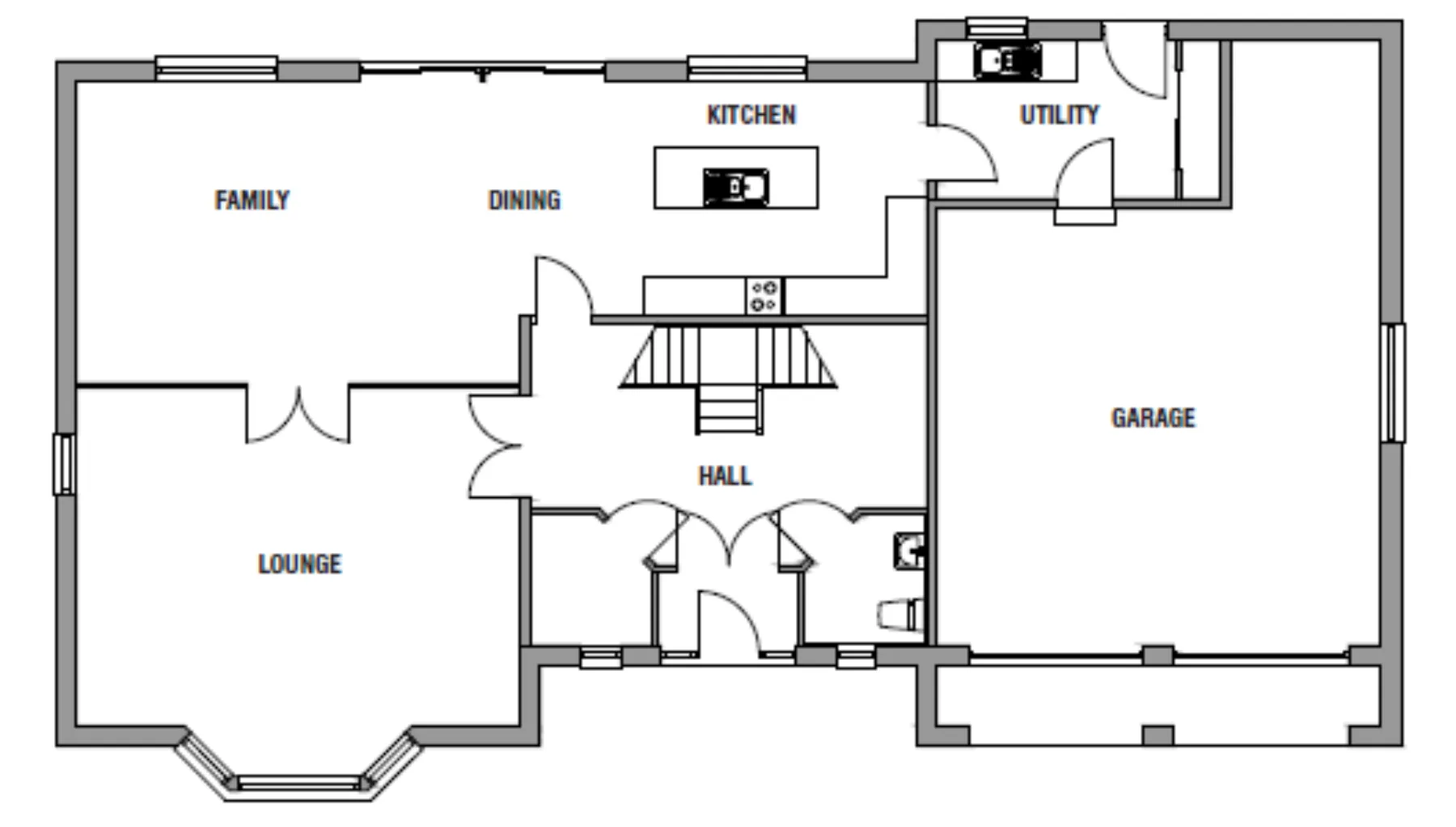
Total Floor Area: 252.5 sq m
Ground Floor Area: 126.4 sq m
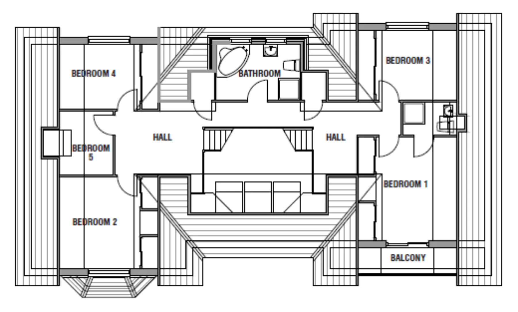
First Floor Area: 126.1 sq m
Garage Floor Area: 48.5 sq m
House Frontage: 20.0m
Ridge Height: 7.1m
Lounge: 6.6m x 5.0m
Kitchen/Family/Dining: 12.7m x 4.5m
Bedroom 1: 4.4m x 3.5m
Bedroom 2: 3.9m x 3.5m
Bedroom 3: 3.5m x 3.0m
Bedroom 4: 3.5m x 2.8m
Bedroom 5: 2.7m x 2.3m

